
Cannes - Appartement moderniste
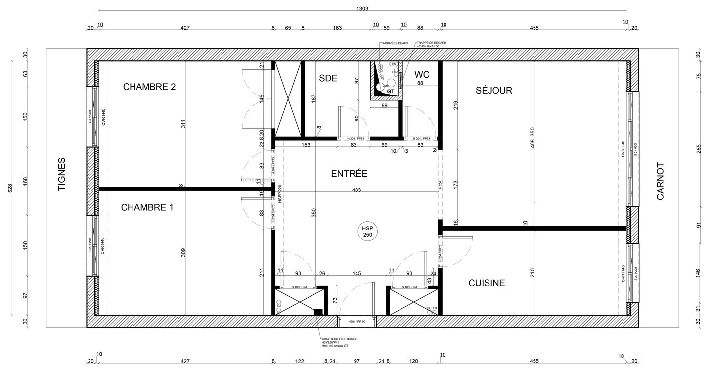
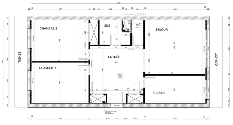
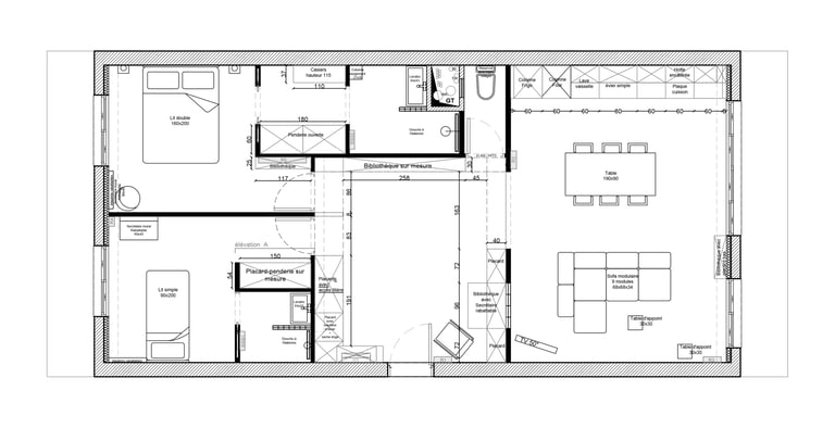
Dans le cadre d'un achat immobilier, nous étudions le potentiel d'un appartement des années 70 et proposons des solutions d'aménagement et de décoration pour une famille de 3 personnes. Nous choisissons de préserver le plan initial de l'appartement tout en le rendant plus contemporain : nous ouvrons la cuisine sur le salon, faisons en sorte que chaque chambre possède sa propre salle d'eau et optimisons la grande entrée pour accueillir une fonction bureau, bibliothèque et buanderie. En accord avec les goûts du couple, nous privilégions une décoration moderniste, alliant simplicité et pièces de design iconiques.
























